BEESAFE ES NUESTRA MARCA DE PLATAFORMAS ELEVADORAS
TECNOLOGÍA BEESAFE

PLATAFORMAS DE TRABAJO BEESAFE - SEGURIDAD Y CONFORMIDAD
Facilidad de uso
Gracias a un sistema de regulación manual de la altura con una precisión milimétrica, las plataformas Beesafe permiten acceder fácilmente a diferentes alturas de trabajo, sin necesidad de un CACES (certificado de aptitud para la conducción segura). Este ajuste es posible gracias al uso de un gato hidráulico, lo que elimina la necesidad de electricidad y simplifica el mantenimiento.
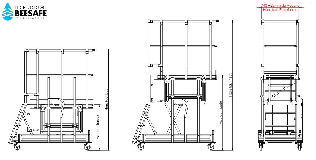
Versatilidad y adaptabilidad
Beesafe ofrece una gama de plataformas que se adaptan a una gran variedad de necesidades, con modelos de altura regulable de hasta 2.500 mm y superficies de trabajo que van de 1.200 x 600 mm a 1.800 x 800 mm, incluyendo opciones de desplazamiento frontal. Las barandillas pueden ser fijas o desmontables, y existen tamaños a medida para satisfacer requisitos específicos.
Capacidad y robustez
Con una capacidad de carga de 250 a 300 kg, las plataformas Beesafe pueden alojar hasta tres usuarios, lo que hace que el trabajo en altura sea más eficaz y colaborativo. Los robustos materiales utilizados garantizan durabilidad y resistencia a largo plazo, incluso en condiciones de trabajo difíciles.
Movilidad y maniobrabilidad
Las plataformas Beesafe son ligeras y fáciles de maniobrar, por lo que pueden desplazarse sin esfuerzo por la obra. Su diseño compacto hace que quepan por puertas estándar, lo que aumenta su utilidad en espacios reducidos o de difícil acceso.
Reconocimiento a la innovación
Galardonada con el Premio a la Innovación PREVENTICA 2018 en la categoría 'Trabajo en altura', Beesafe continúa innovando para ofrecer soluciones de trabajo en altura seguras y de alto rendimiento. El reconocimiento de este premio demuestra el compromiso de Beesafe con la excelencia y la seguridad.
Elegir Beesafe es optar por una solución de trabajo en altura segura, flexible y eficaz, diseñada para responder a las exigencias más estrictas de los profesionales de la construcción y el mantenimiento. Descubra todas nuestras plataformas y sus ventajas visitando una de nuestras tiendas L'Échelle Européenne o solicitando una demostración en su lugar de trabajo.

Diseño a medida

Entendemos que cada lugar y entorno de trabajo puede tener necesidades únicas. Por eso Beesafe ofrece soluciones de diseño a medida para sus plataformas de trabajo. Ya se trate de dimensiones específicas, funcionalidad adicional o configuraciones particulares, nuestro equipo está dispuesto a trabajar con usted para crear la plataforma de trabajo aérea perfecta para su proyecto. Esta personalización maximiza la eficacia y la seguridad de sus operaciones.


